Galkemaheerd 34 , GRONINGEN

€ 375.000 kosten koper

In de groene en kindvriendelijke wijk Beijum ligt deze ruime, instapklare woning aan de Galkemaheerd. Met maar liefst 134 m² woonoppervlak, verdeeld over 5 slaapkamers en 2 badkamers, biedt deze woning volop ruimte voor het hele gezin. De woning is uitgebouwd en beschikt over energielabel B. Dankzij moderne en duurzame voorzieningen zoals een nieuwe cv-ketel (2024), HR++ glas, een waterontharder en een sedumdak op het platte dak van de uitbouw, ervaar je hier optimaal comfort en duurzaamheid.

Scholen en andere dagelijkse voorzieningen zijn dichtbij, en binnen 15 minuten fiets je naar het bruisende centrum van Groningen. Ook met de auto en het openbaar vervoer is de bereikbaarheid uitstekend. Een fijne plek om comfortabel en zorgeloos te wonen!

INDELING

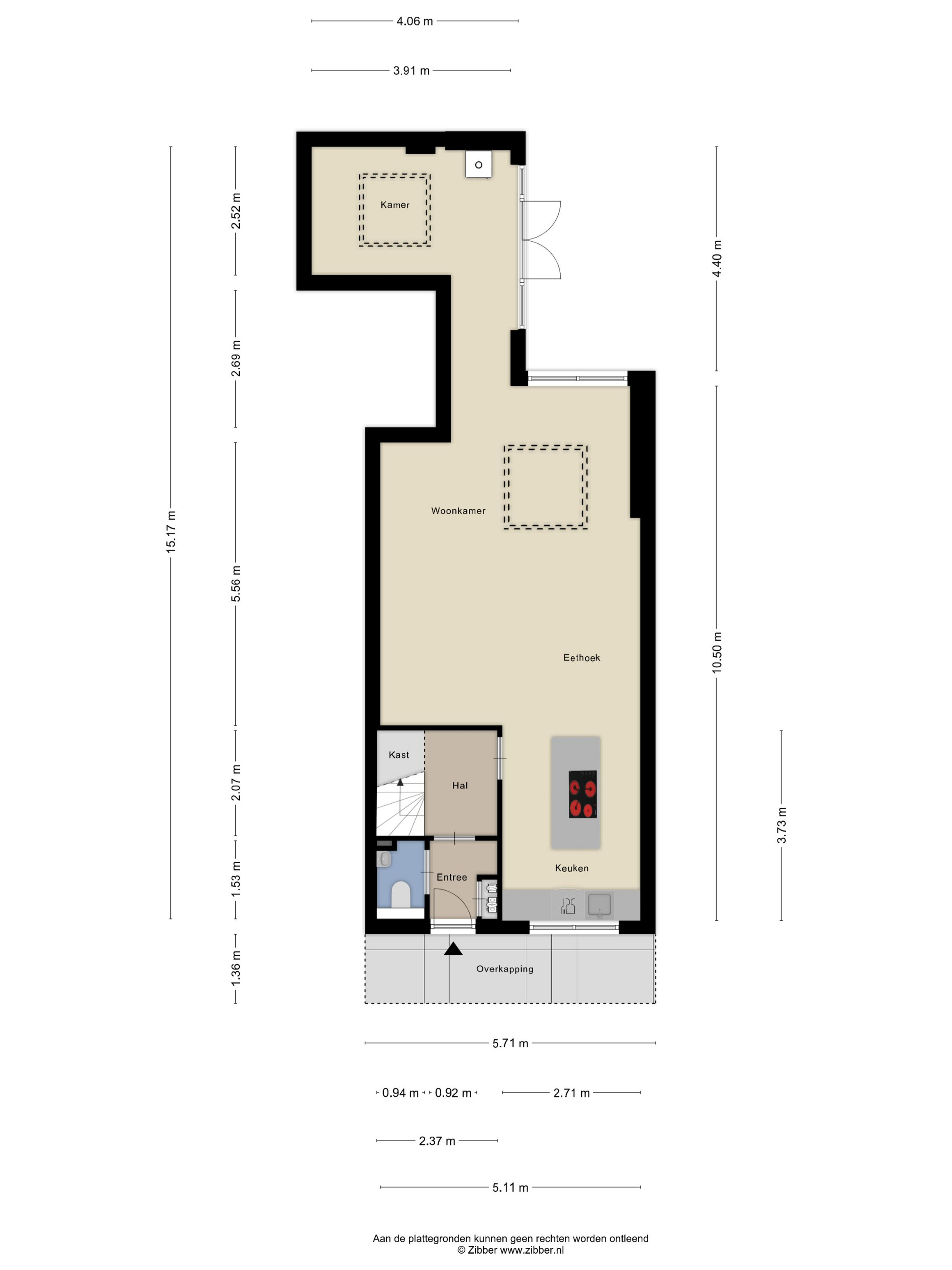
Begane grond:

Binnenkomst in de hal, die toegang biedt tot de toiletruimte en de trap naar de verdieping, waaronder extra bergruimte is gecreëerd. Vanuit de hal loop je door naar de woonkeuken, waar een recht keukenblok met wasbak met kokend waterkraan, vaatwasser, dubbele koelkast en combi-oven is gecombineerd met een stijlvol kookeiland voorzien van veel opbergruimte en een inductiekookplaat met wokzone. De keuken loopt naadloos over in de sfeervolle woonkamer, waar dankzij de dakkoepel veel natuurlijk licht naar binnen valt. Door de open indeling blijf je altijd in contact met de rest van het huis, wat zorgt voor een fijne en verbonden sfeer.

Aan de achterzijde van de woning bevindt zich een royale uitbouw, eveneens voorzien van een dakkoepel en een pelletkachel die voor een warme, gezellige ambiance zorgt. Via de openslaande deuren stap je zo de ruime, zonnige tuin in.

Eerste verdieping:

De overloop biedt toegang tot drie slaapkamers van 12.2, 11.9 en 6.2 m². De slaapkamers aan de achterzijde hebben een nieuwe dakkapel met rolluiken. De badkamer is ingericht met een inloopdouche, wastafelmeubel met spiegel, een tweede toilet en de aansluiting voor de wasmachine.

Tweede verdieping:

Op deze verdieping vind je nog eens twee slaapkamers van 7.6 en 7.3 m². De kleinste slaapkamer wordt nu gebruikt voor bergruimte. Een van de kamers is voorzien van airconditioning en heeft directe toegang tot de tweede badkamer, die is voorzien van een inloopdouche en derde toilet. Ideaal voor grotere gezinnen, maar ook perfect wanneer je regelmatig gasten ontvangt.

BUITEN

De zonnige tuin ligt op het westen, waardoor je in de middag en avond volop van de zon kunt genieten. De tuin is volledig betegeld en aan de zijkanten voorzien van beplanting die zorgt voor een natuurlijke uitstraling. De sfeervolle pergola's voegen karakter toe aan het geheel. De tuin is middels een achterom bereikbaar en er is een ruime berging aanwezig, ideaal voor het opbergen van fietsen, tuingereedschap en andere spullen.

OMGEVING

De woning bevindt zich in de groene en kindvriendelijke wijk Beijum. Er zijn volop voorzieningen binnen handbereik, zo vind je in de directe omgeving diverse basisscholen, sportvoorzieningen, een gezondheidscentrum en een compleet winkelcentrum waar je terecht kunt voor de dagelijkse boodschappen. Voor recreatie is het nabijgelegen natuur- en sportgebied Kardinge een groot pluspunt. Daarnaast ligt op korte afstand een prachtig park met vijvers, een fontein en bosrijke wandelpaden, ideaal voor een ontspannen wandeling of om even tot rust te komen. Wil je naar de binnenstad van Groningen? Met je fiets ben je binnen ongeveer 15 minuten in het bruisende centrum. Ook met de auto is de bereikbaarheid uitstekend, via de ringweg ben je snel op de A7 of A28. En met meerdere bushaltes vlakbij, die verbindingen bieden naar verschillende delen van de stad, is het openbaar vervoer ook goed geregeld.

Soort woning
Eengezinswoning
Perceeloppervlakte
152 m2
Woonoppervlakte
134 m2
Aantal kamers
6 kamers (5 slaapkamers)
Status
Verkocht onder voorbehoud
Aanvaarding
In overleg

Bouw

Bouwvorm
Bestaande bouw
Bouwjaar
1981
Soort dak
Samengesteld dak bedekt met pannen, bitumineuze dakbedekking

Oppervlakten en inhoud

Gebouwgebonden buitenruimte
7 m2
Externe bergruimte
15 m2
Inhoud
475 m3

Indeling

Aantal woonlagen
3
Voorzieningen
Tv kabel, airconditioning

Energie

Energielabel
B
Isolatie
Dakisolatie, muurisolatie, vloerisolatie
Warm water
C.v.-ketel

Buitenruimte

Ligging
In woonwijk
Tuin
Achtertuin

Bergruimte

Schuur/berging
Vrijstaand hout

Parkeergelegenheid

Soort garage
Geen garage

Downloads

Documentatie per e-mail

Afspraak voor bezichtiging

Neem contact met ons op voor vragen of om een afspraak te maken voor bezichtiging

Maak een afspraak

Ja, ik wil graag een afspraak maken voor deze woning

Mijn gegevens

Gewenste datum voor afspraak

Mijn vraag of opmerkingen

Streetview

Contact

Adres

  • Verlengde Hereweg 20-2
    9722AC Groningen
  • Maandag t/m vrijdag
    9.00 uur t/m 17.30 uur